
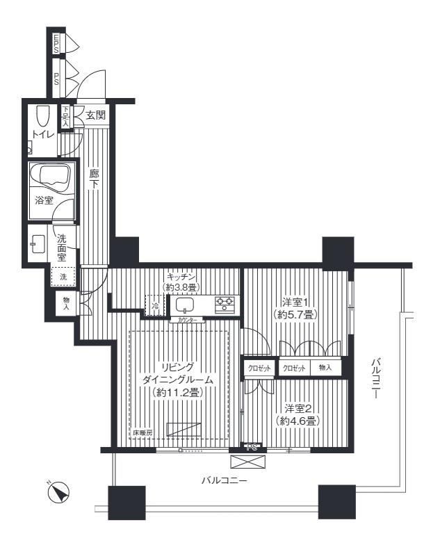
| Layout | 2 BR + 1 Bath |
|---|---|
| Size | 58.99 sq.m. / 634.96 sq.ft. |
| Rent | JPY270,000/month |
| Management Fee | JPY19,000/month |
| Deposit | 1 month |
| Key Money | 1 month |
| Renewal Fee | 1 month |
| Date Available | Immediate |
|---|---|
| Contract | 2 years renewable |
| Pet | - |
| Parking | Negotiable : - |
| Note | Feature: Music instrument negotiable, No pet (1 Application) |
| Address | Higashiikebukuro, Toshima-ku, Tokyo |
|---|---|
| Transportation | Yurakucho Line, Higashi-ikebukuro Station : 1 min. walk JR Yamanote Line, Ikebukuro Station : 8 min. walk Marunouchi Line, Ikebukuro Station : 8 min. walk |
| Structure | Reinforced Concrete Structure 42 stories & 3 basement floors |
|---|---|
| Completion | December, 2006 |
© 2025 PLAZA HOMES, LTD.